Portfolio
  1. Trabajos realizados por OAU Arquitectura
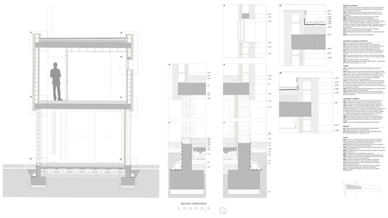
  2. Vivienda en Corrubedo

Vivienda en Corrubedo

20 imágenes

Casa Eugenia y Casa Juan

Financiado por la Unión Europea - NextGenerationEU. Sin embargo, los puntos de vista y las opiniones expresadas son únicamente los del autor o autores y no reflejan necesariamente los de la Unión Europea o la Comisión Europea. Ni la Unión Europea ni la Comisión Europea pueden ser consideradas responsables de las mismas.